Réf : 2017

Toulouse (31400) Appartement

2 Pièce(s)
1 Chambre(s)
1 Salle(s) de bain

Les infos Essentielles

Caractéristiques Valeurs
Code postal 31400
Surface habitable (m²) 38,60 m²
Nombre de chambre(s) 1
Nombre de pièces 2
Caractéristiques Valeurs
Meublé NON
Etage 3
Ascenseur OUI
Nb de salle de bains 1
Caractéristiques Valeurs
Cuisine Américaine
Type de cuisine SEMI-EQUIPEE
Mode de chauffage Electrique
Type de chauffage Radiateur
Caractéristiques Valeurs
Format de chauffage Individuel
Interphone OUI
Balcon OUI
Nombre de parking 1
Caractéristiques Valeurs
Exposition Ouest
Année de construction 2009
Quartier Palais de Justice, Saint Michel
Copropriété OUI

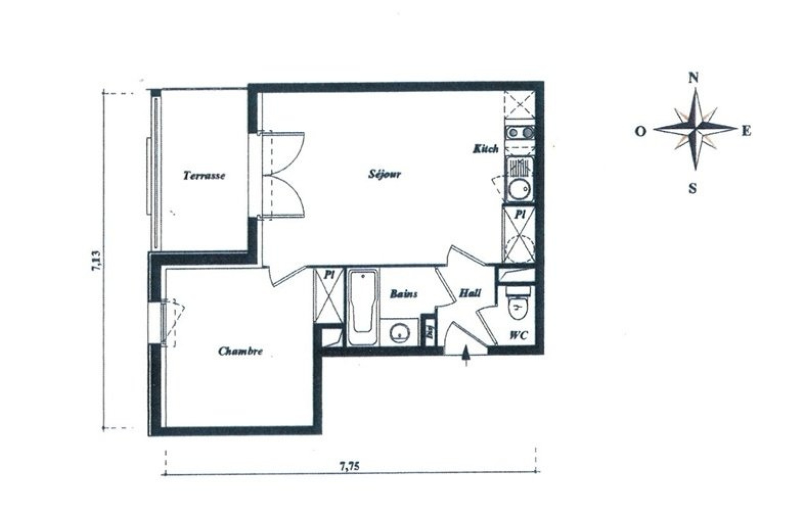
SAINT MICHEL - GARONNE T2 de 39 m² dans petite résidence récente, calme et sécurisée.

Situé à 10 mn à pied du tramway/métro Palais de Justice et 7 mn des commerces, l'appartement se compose d'une entrée, un séjour avec placard, un espace cuisine aménagée semi équipée (plaque cuisson induction, hotte aspirante et four), une chambre avec placard, une salle de bain et un wc séparé. Le séjour ouvre sur une belle terrasse ensoleillée.

Le logement dispose d'un emplacement de parking aérien privatif.

Le chauffage est individuel électrique.


LOYER MENSUEL 592 € + PROVISION DE CHARGES 58 € SOIT 650 € CHARGES COMPRISES

Les infos Financières

Loyer CC* / mois 650 €
Honoraires TTC charge locataire 492,60 €
Dont état des lieux 115,80 €
Dépôt de garantie TTC 592 €
Charges locatives (Previsionnelles mensuelles les avec regularisation annuelle) 58 €

Nos outils

Imprimer

* CC : Charges comprises

Localisation Du bien

  • Commerces et santé
  • Loisirs
  • Ecoles
  • Transports
  • Pratique

Les infos Energetiques

DPE GES

Montant estimé des dépenses annuelles d'énergie pour un usage standard est compris entre 480 € et 710 € . Prix moyens des énergies indexés sur les années 2021, 2022 et 2023 (abonnements compris).

Intéressé(e) par Ce bien ?

* Champ obligatoire

Les informations recueillies sur ce formulaire sont enregistrées dans un fichier informatisé par La Boite Immo agissant comme Sous-traitant du traitement pour la gestion de la clientèle/prospects de l'Agence / du Réseau qui reste Responsable du Traitement de vos Données personnelles. La base légale du traitement repose sur l'intérêt légitime de l'Agence / du Réseau. Elles sont conservées jusqu'à demande de suppression et sont destinées à l'Agence / au Réseau. Conformément à la loi « informatique et libertés », vous disposez des droits d’accès, de rectification, d’effacement, d’opposition, de limitation et de portabilité de vos données. Vous pouvez retirer votre consentement à tout moment en contactant directement l’Agence / Le Réseau. Consultez le site https://cnil.fr/fr pour plus d’informations sur vos droits. Si vous estimez, après avoir contacté l'Agence / le Réseau, que vos droits « Informatique et Libertés » ne sont pas respectés, vous pouvez adresser une réclamation à la CNIL. Nous vous informons de l’existence de la liste d'opposition au démarchage téléphonique « Bloctel », sur laquelle vous pouvez vous inscrire ici : https://www.bloctel.gouv.fr Dans le cadre de la protection des Données personnelles, nous vous invitons à ne pas inscrire de Données sensibles dans le champ de saisie libre.
Ce site est protégé par reCAPTCHA, les Politiques de Confidentialité et les Conditions d'Utilisation de Google s'appliquent.
contacter l'agence
2 -> Erreur de chargement d'un module /.tpl
Nous suivre sur