Toulouse (31200)T2 48 m² balcon 15 m² parking sous-sol
2Pièce(s)
1Chambre(s)
1Salle(s) de bain
Les infosEssentielles
CaractéristiquesValeurs
Code postal31200
Surface habitable (m²)48,45 m²
Nombre de chambre(s)1
Nombre de pièces2
CaractéristiquesValeurs
MeubléNon renseigné
Etage1
AscenseurOUI
Nb de salle de bains1
CaractéristiquesValeurs
Mode de chauffageElectrique
Type de chauffage Autre
Format de chauffageIndividuel
BalconOUI
CaractéristiquesValeurs
Murs mitoyens-1
ExpositionSud-Ouest
Année de construction2002
QuartierLa Vache
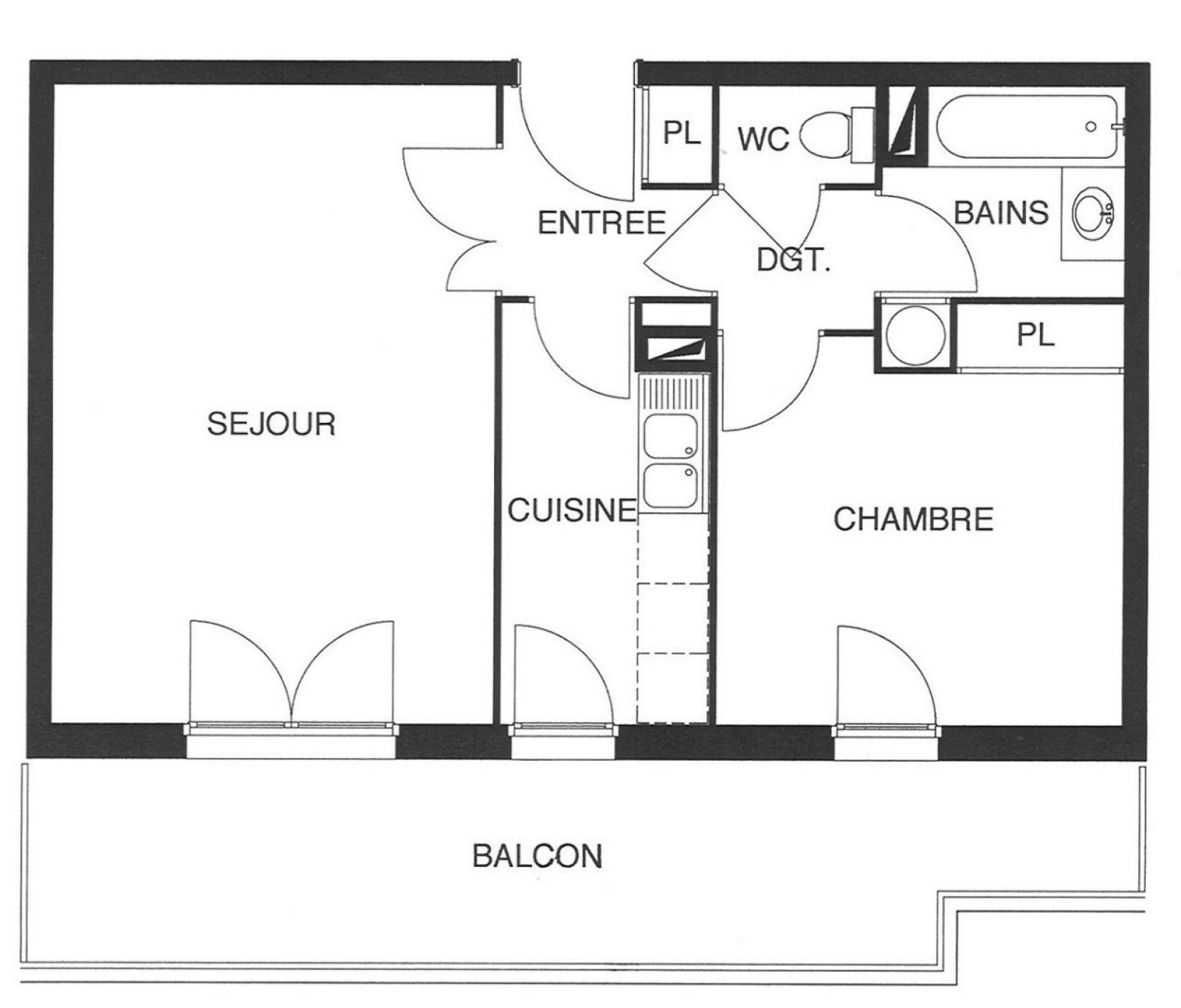
METRO LA VACHE T2 48 m² rés récente avec ascenseur, Métro ligne B sur place, commerces à proximité immédiate Se composant, d'une entrée avce placard, d'un séjour, d'une cuisine séparée aménagée, d'une chambre avec placard, d'une salle de bain, d'un wcx séparé et d'un grand balcon de 15 m². A calme et ensoleillé. Chauffage indiviudel électrique. Un emplacement de parking sous-sol. LOYER MENSUEL 556 ? HORS CHARGES + 59 ? DE PROVISIONS POUR CHARGES SOIT 615 ? CHARGES COMPRISES
On aimerait vous accompagner pendant votre visite.
En poursuivant, vous acceptez l'utilisation des cookies par ce site, afin de vous proposer des contenus adaptés et réaliser des statistiques !
Paramétrer
Cookies fonctionnelsCes cookies sont indispensables à la navigation sur le site, pour vous garantir un fonctionnement optimal. Ils ne peuvent donc pas être désactivés.
Statistiques de visitesPour améliorer votre expérience, on a besoin de savoir ce qui vous intéresse ! Les données récoltées sont anonymisées.