Réf : 2551

Toulouse (31500) GUILHEMERY - T3 avec terrasse/jardin et parking

3 Pièce(s)
2 Chambre(s)
1 Salle(s) de bain

Les infos Essentielles

Caractéristiques Valeurs
Code postal 31500
Surface habitable (m²) 64,63 m²
Surface loi Carrez (m²) 64,63 m²
Nombre de chambre(s) 2
Caractéristiques Valeurs
Nombre de pièces 3
Nombre de niveaux 1
Ascenseur OUI
Nb de salle de bains 1
Caractéristiques Valeurs
Cuisine Américaine
Type de cuisine SEMI-EQUIPEE
Mode de chauffage Gaz
Type de chauffage TRAD_TYPE_CHAUFF_CHAUDIERE
Caractéristiques Valeurs
Format de chauffage Individuel
Interphone OUI
Terrasse OUI
Exposition Est
Caractéristiques Valeurs
Année de construction 2018
Quartier Guilhemery
Copropriété OUI
nombre de lots 56
Caractéristiques Valeurs
Quote Part annuelle des charges 1 700 €
plan de sauvegarde NON
statut du syndic pas de procédure en cours

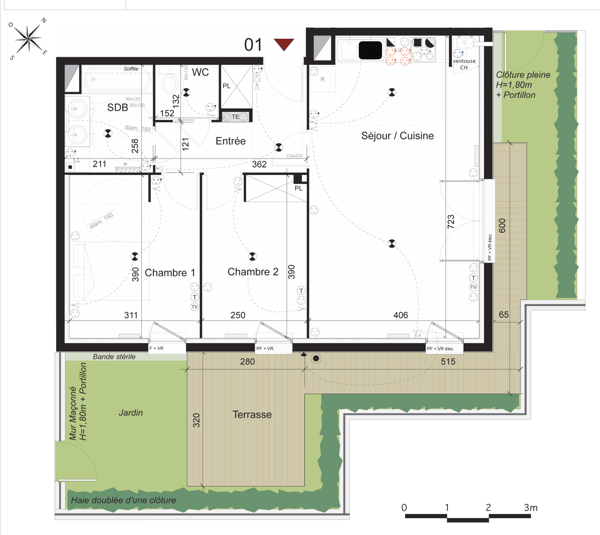
GUILHEMERY - Dans résidence sécurisée de 2018, agréable T3 de 64 m² situé en rez-de-jardin. Il se compose d'une entrée avec placard, d'un vaste séjour bénéficiant d'une double exposition donnant sur deux terrasses et jardinet privatif, de 2 chambres dont une avec placard aménagé, d'une salle de bains et d'un Wc indépendant. Le chauffage est individuel gaz. L'appartement dispose d'un emplacement de parking en sous sol. Vous profiterez du calme d'un quartier résidentiel et de la proximité des commerces, commodités et transports en commun. Charges annuelles moyennes 1700 euros environ. Contact direct o6 O8 49 o7 48

Les infos Financières

Prix de vente 250 000 €
Les honoraires d'agence seront intégralement à la charge du vendeur  
Charges 141 €
Taxe foncière annuelle 1 395 €

Nos outils

Imprimer

Localisation Du bien

  • Commerces et santé
  • Loisirs
  • Ecoles
  • Transports
  • Pratique

Les infos Energetiques

DPE GES
DPE en cours
Intéressé(e) par Ce bien ?

* Champ obligatoire

Les informations recueillies sur ce formulaire sont enregistrées dans un fichier informatisé par La Boite Immo agissant comme Sous-traitant du traitement pour la gestion de la clientèle/prospects de l'Agence / du Réseau qui reste Responsable du Traitement de vos Données personnelles. La base légale du traitement repose sur l'intérêt légitime de l'Agence / du Réseau. Elles sont conservées jusqu'à demande de suppression et sont destinées à l'Agence / au Réseau. Conformément à la loi « informatique et libertés », vous disposez des droits d’accès, de rectification, d’effacement, d’opposition, de limitation et de portabilité de vos données. Vous pouvez retirer votre consentement à tout moment en contactant directement l’Agence / Le Réseau. Consultez le site https://cnil.fr/fr pour plus d’informations sur vos droits. Si vous estimez, après avoir contacté l'Agence / le Réseau, que vos droits « Informatique et Libertés » ne sont pas respectés, vous pouvez adresser une réclamation à la CNIL. Nous vous informons de l’existence de la liste d'opposition au démarchage téléphonique « Bloctel », sur laquelle vous pouvez vous inscrire ici : https://www.bloctel.gouv.fr Dans le cadre de la protection des Données personnelles, nous vous invitons à ne pas inscrire de Données sensibles dans le champ de saisie libre.
Ce site est protégé par reCAPTCHA, les Politiques de Confidentialité et les Conditions d'Utilisation de Google s'appliquent.
contacter l'agence
2 -> Erreur de chargement d'un module /.tpl
Nous suivre sur